Transforming a Dana Point Home: From Dark & Closed-Off to Light & Open


Transforming a Dana Point home doesn’t have to break the bank. With thoughtful design, smart material choices, and a focus on light and flow, we turned a dark, dated space into a bright, modern, and functional home.


Before the Interior Remodel: Challenges & Opportunities

 

This home had:

• Dark, enclosed rooms

• A cramped secondary bathroom

• Laundry tucked away in the garage

• Outdated finishes and cabinetry

• Exterior landscaping and entry that lacked curb appeal

Our goal? Open up the space, maximize natural light, and create a home that feels spacious, welcoming, and practical.

Before Photos →


Design & Planning: Teamwork Makes the Dream Work

We collaborated with the Architect & Structural Engineer to reimagine the layout. The centerpiece was a steel beam spanning the main living area, allowing us to remove walls safely and create an open, airy space.

Other design solutions included:

• Expanding the secondary bathroom by removing the dividing wall, and adding a second sink

• Relocating the laundry from the garage to the upstairs vestibule

• Installing a new front door with a glass inset to flood the entry with light

Schedule a consultation to see more remodels →


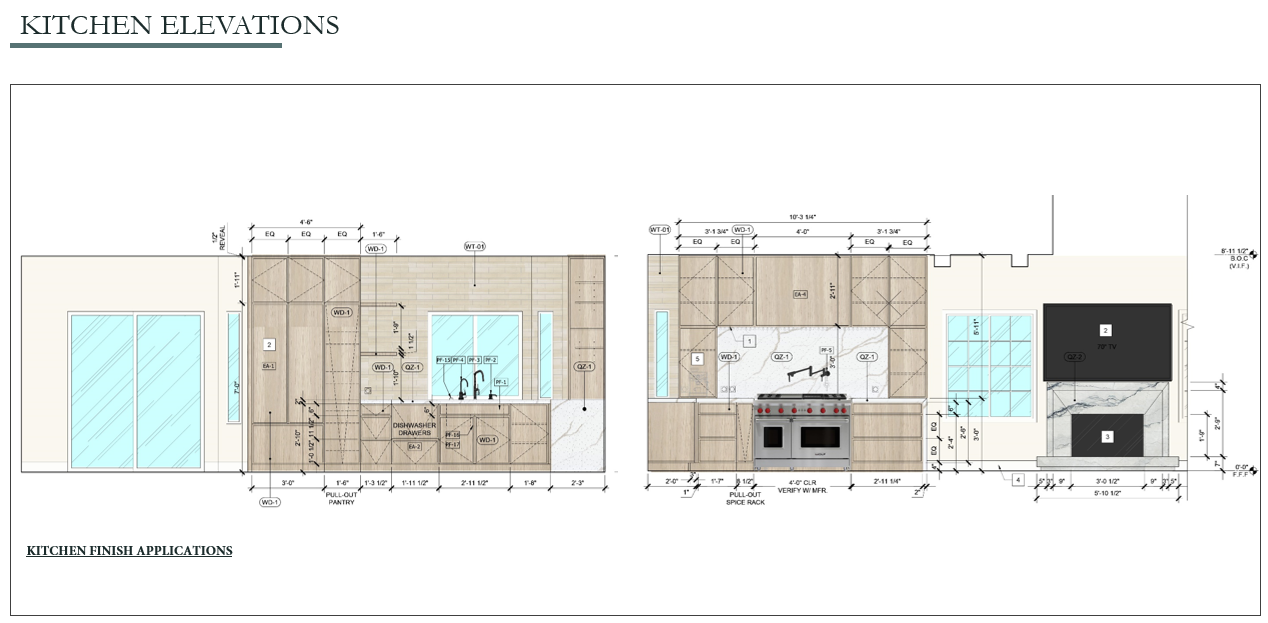
Material Choices: High-End Look on a Smart Budget

We strategically combined high-end and cost-effective materials:

• Thermofoil oak-look kitchen cabinets for warmth at a fraction of the cost of real wood

• Painted walls for a bright, cohesive backdrop

• Fully tiled and slabbed shower interiors for a luxurious feel

• Custom, unexpected detailing to elevate the look - same materials, thoughtfully executed

This approach ensured maximum visual impact without overspending, proving that smart choices can achieve a high-end look on a budget.

Peek into the Design Process →


During the Interior Remodel: Transformation in Progress

Watching the space evolve is the best part:

• Walls came down, and rooms opened up

• Natural light poured into every corner

• Bathrooms were reconfigured for comfort and convenience

• The upstairs laundry to make daily routines simpler

Every step focused on flow, functionality, and light, turning a once-closed-off home into a breathable, enjoyable space.

During Construction Photos →


After the Remodel: A Bright, Open, and Inviting Home

 

The completed Dana Point remodel showcases:

• Light-filled main living areas

• An expanded secondary bathroom with dual sinks

• Functional upstairs laundry tucked neatly out of sight

• Warm, inviting kitchen cabinetry

The home now feels larger, brighter, and more functional, blending style with practicality.

After photos- not professional, but you can see the transformation →

Schedule a consultation to discuss your remodel →

Next
Next

Design Inspiration: Layered Pillows and Throws for Autumn